Method Statement for the erection of precast & prestressed elements.
Purpose.
The aim of this method statement is to describe the
procedure that will be adopted for erection
of Precast and Pre-stressed
concrete Elements. The process include detailed design, workshop
drawings, Sequence of work, Quality Control System, Tolerances, Risk involved
and risk controls, Housekeeping, to be adopted during the erection of Precast
and Pre-stressed Concrete Elements.
Pre-construction activities.
Before commencing, precast subcontractor shall obtain the
necessary approval for the
subcontractor/applicator and their proposed material.
Ensure to obtain the approvals for the detailed shop drawings
for the sub-structure raft foundation with all related drawings.
Ensure that this Method statement with risk assessment is
approved by the Consultant.
Construction activity.
General.
Erection shall be done by Mobile crane with sufficient
capacity. Precast/prestressed concrete elements shall be lifted from the
lifting anchor provided. Proper tools and lifting sling and safe device shall be used for
lifting.
Before starting erection, a survey of the area to receive
Precast/prestressed concrete segments shall
be done to monitor any difference in dimensions or levels exceeding the
tolerances.
Precast/prestressed concrete segments will inspect before
the erection by subcontractor Erection Engineer /Supervisor and Engineer.
Transportation and delivery to site.
Precast/prestressed concrete elements shall be transported
to the site only after the QC final
inspection and Approval.
Precast/prestressed concrete Elements shall be transported
to site on a flatbed trailer, Low bed
trailers and “A” frame trailers
generally standard 12 -15-meter length. Elements will be supported over the trailer by special belt or steel
chain fixed to the trailer. Wooden wedges/polystyrene bottom and side support will be provided to
eliminate breakages if required.
Loading, transportation & offloading shall be done
carefully to avoid any major damage to the
precast elements.
Offloading and loading of panels should be done using
suitable mobile crane and elements shall be
stacked in steel racks as per standards.
Suitable lifting devices/sling/equipment will be used for
loading and off-loading of the elements. Crane will be used for loading and
off-load of the Precast/prestressed concrete Segments. Capacity of crane shall be decided depending on the
weight of the elements and boom length required.
Barricade to be provided and sign boards to be placed in the
area of lifting to avoid unauthorized personnel entering to the lifting area.
While the Precast/prestressed concrete elements are being
lifted for loading or off-loading, proper
signboard will be kept if the operation time is more, or a competent
person will be directing the people away
from the crane boom (when the operation time is short).
If Precast/prestressed concrete Elements are stored at site,
it should be as close as possible to crane
to avoid double handling.
The access road should be prepared by main contractor to
receive trailers transporting the
Precast/prestressed concrete units.
All the precast Precast/prestressed concrete Elements will
be delivered to the site as per the sequence
required to ensure the continuous erection.
Field survey.
A field survey and stakeout of existing cast in situ
dimension will be performed to permit accurate placement of Precast/prestressed
concrete elements. Before the erection of Precast/prestressed concrete elements
is started the surveyor will verify by
accurate field measurements, location (orientation, level) of bearing pads,
M&E service accessories etc.
The exact position of all works will be established by the
main contractor from control points, which are shown on the panels and in the conjunction and as agreed
with the Engineers surveyors
Grid lines should be handed over by Main Contractor for each
zone and benchmark level.
Survey also should be done for the dowel bars connecting the
panels to the slabs .
Level of slabs or rafts should be within the tolerance ( zero gap to max of 30
mm between panels & slab and rafts),
if exceeds special materials shall be used.
All computations and drawings necessary to establish the
exact positions of the work will be neatly made and will be made available to
the Engineer for review and approval.
Scaffolding and temporary work.
Precast elements prior and upon placing in their final position,
will be securely supported and anchored. If necessary, suitable, and safe
working platforms will be provided in all locations required to allow clear and
easy approach of the workers to produce quality connection details. Scaffolding
placing will be closely coordinated with the main contractor to ensure
accessibility to other areas of work.
Scaffolding will be used mainly for the temporary supported or alignment of the panels or in case of grouting finishing or elements fixing.
Ladders may be used in some conditions (ex-Grouting, etc.)to
assure easy access specially inside the small rooms.
Erection.
Erection of precast column of foundation.
Typical sketch for lifting &erection of precast column
in attached Lifting and Erection drawings.
CAST INSITU foundation shall be done as per the approved
drawing. Starter bar diameter, location
shall be as approved drawing.
Precast column will be placed on CAST INSITU foundation,(T20
dowel from CIS foundation will be insert into 50mm corrugated hole pipe of
precast concrete element)
While precast column erected it shall be supported by push
pull prop jacks as per attached propping design.
Precast Column alignment shall be done, and line ,level
,verticality, and straightness shall be maintained as per the approved erection
layout.
Grout the 50mm corrugated hole pipe by approved non shrink
grout.
All exposed areas should be thoroughly cured in an accepted
and approved manner.
Erection of precast beam.
Typical sketch for lifting &erection of Precast column& beam in attached Lifting and Erection
drawings.
Precast beam will be placed on precast column as per
attached propping details &design.
Alignment of the beam shall be done to maintain the line
,level ,straightness and verticality.
Cast in-situ steel reinforcement shall be provided as per
the approved steel reinforcement drawing.
Apply the concrete
for balance portion of beam. Grade of concrete strength shall be as per project
specification for super structure.
Curing shall be continued as per the project
specification/standards.
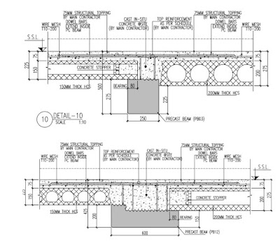
Erection of slab(hollow core/ form slab).
Typical sketch for lifting &erection of slab in attached
Lifting and Erection drawings.
Hollow core Slabs
will be placed on beam CIS retaining wall corbel as per attached details
&design.
Precast form slab will be placed on precast beam as per
attached propping details &design.
Maintain the minimum bearing as per drawings &design.
Alignment of the slab shall be done to maintain the line
,level, straightness, and verticality.
Cast in situ Steel reinforcement shall be provided as per
the approved steel reinforcement drawing and below connection details.
Apply the concrete for topping of Slab. Grade of concrete
strength shall be as per project specification
for super structure.
Curing shall be continued as per the project
specification/standards.
Repairing.
Repairing works for any general defects in precast
/prestressed concrete elements shall be done using approved repair materials or
any equipment approved material. Repairs will be carried out as per the
manufacturer recommendations.
See Risk Assessment Template for Delivery and Erection Precast Elements.
See Checklist Template of Erection Precast/ Prestressed Concrete Elements.




